中古物件
赤穂市塩屋中古戸建




物件詳細情報
| 物件名 | 塩屋戸建 | 所在地 | 表尾見赤穂市塩屋2514-5 |
|---|---|---|---|
| 価格 | 880万円 | 交通 | JR赤穂線 播州赤穂駅 徒歩約24分 |
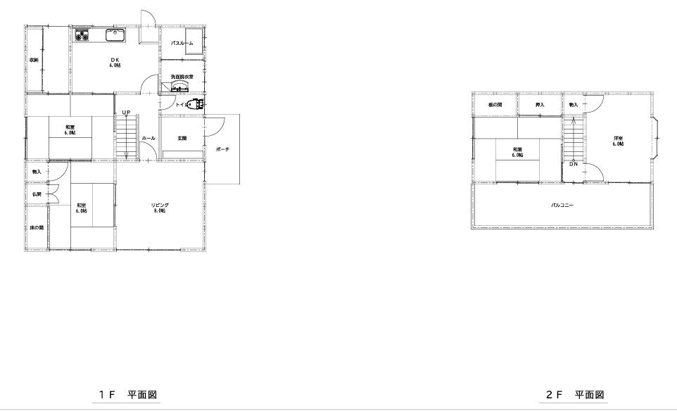
| 築年月 | 1971年12月 | 間取り | 5DK |
| 間取り詳細 | 和6.6.6 洋8.6 | 構造 | 軽量鉄骨造 |
| 駐車場 | あり | 土地権利 | 所有権 |
| 地目 | 宅地 | 土地面積 | 公募166.00㎡ |
| 建物面積 | 107.87㎡ | 都市計画 | 市街化区域 |
| 用途地域 | 第一種中高層住居専用地域 | 建ぺい率 | 60% |
| 容積率 | 200% | 接道状況 | 南側(公道)幅 約4.4m 間口10.5m |
| 上水道 | 公営 | 下水道 | 公共 |
| ガス | プロパンガス | 現況 | 空家 |
| 引渡し | 相談 | 小学校区 | 塩屋小学校 |
| 中学校区 | 赤穂西中学校 | 設備 | |
| 備考 |
アクセスマップ
