中古物件
那波東本町作業場




物件詳細情報
| 物件名 | 那波東本町作業場 | 所在地 | 兵庫県相生市那波東本町339-1 |
|---|---|---|---|
| 価格 | 2200万円 | 交通 | JR山陽本線 相生駅 徒歩約12分 |
| 築年月 | 1991年3月 | 間取り | |
| 間取り詳細 | 構造 | 鉄骨造 | |
| 駐車場 | 作業場内 | 土地権利 | 所有権 |
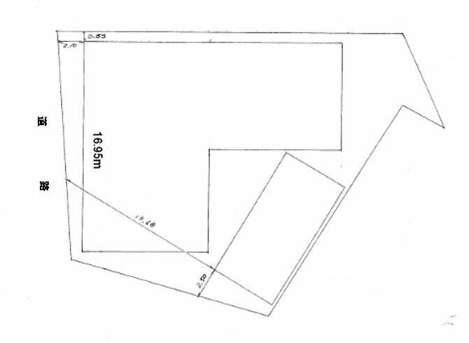
| 地目 | 宅地 | 土地面積 | 504.38㎡ |
| 建物面積 | 320.54㎡ | 都市計画 | 市街化区域 |
| 用途地域 | 準工業 | 建ぺい率 | 60% |
| 容積率 | 200% | 接道状況 | 南西側公道5.9m |
| 上水道 | 公営 | 下水道 | 公共 |
| ガス | 現況 | 入居中 | |
| 引渡し | 相談 | 小学校区 | |
| 中学校区 | 設備 | ||
| 備考 |
アクセスマップ
